Doppelhaus in Holzbauweise

Über das Projekt

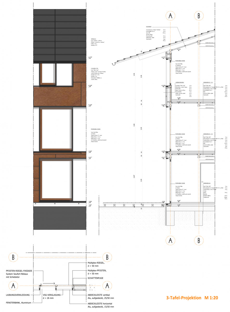
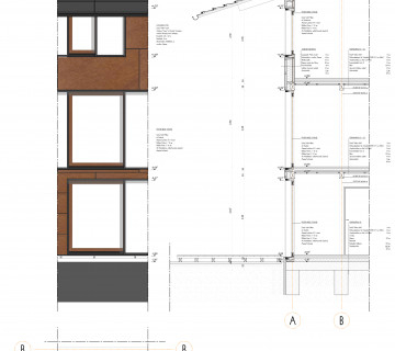
Das Doppelhaus wurde in Skelettbauweise entworfen. BSH-Balken sind zwischen, vom Keller bis zu den Sparren, durchlaufende BSH-Stützen montiert. Die Spannrichtung der Träger ist von Ost nach West. Die Stützen stehen bis auf das Feld an der Südfassade (1,47 m) in einem Achsabstand von 2,00 m. Über den Balken liegt eine Kerto-Furnierschichtplatte als Mehrfeldträger.

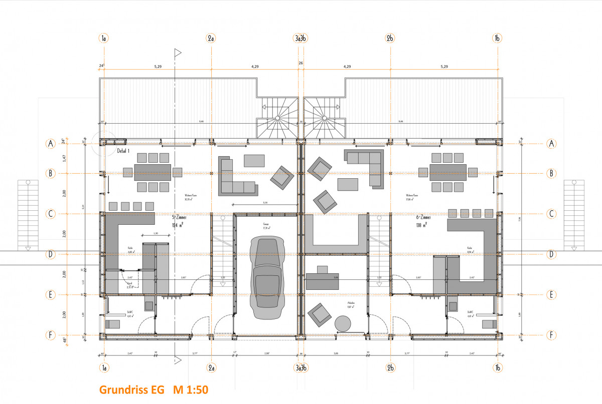
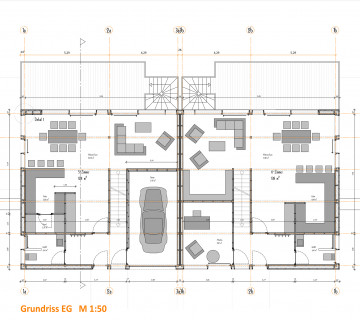
Das Erdgeschoss wird über einen Windfang betreten, von dem aus man in das WC, die Garage und den im Süden gelegenen Wohn-Essbereich gelangt.

Alternativ zur Garage kann dieser Bereich dem Wohnbereich zugeordnet sein oder als Arbeitszimmer schon vom Windfang aus erschlossen werden. Statt des Garagentores wird eine Pfosten-Riegel-Fassade eingebaut. Auch die Wand der Vorratskammer ist in Leichtbauweise erstellt und kann daher entfallen. Zusätzliche Wände könnten zwischen Küche und Essen oder Essen und Wohnen eingezogen werden sollte eine offene Bauweise nicht gewünscht sein.

Das Obergeschoss besteht in seiner Grundform aus drei Kinderzimmern, einem Elternschlafzimmer mit Ankleide und einem Badezimmer.
Alle Schlafzimmer werden nach Süden und Osten belichtet, nur das Bad und der Flur haben Fenster nach Norden.

  • In Variante 1 wurde lediglich im südlichen Kinderzimmer der Boden zum Erdgeschoss entfernt und so ein Luftraum zum darunterliegenden Essbereich geöffnet. Dieser ist vom Flur aus einsehbar.
  • In Variante 2 wurde die Wand zwischen den beiden kleinsten Kinderzimmern entfernt und so zwei etwas größere Kinder- oder Jugendzimmer geschaffen. Bad und Elternschlafzimmer bleiben im Ursprungszustand.
  • In Variante 3 bleiben die beiden kleinen Kinderzimmer erhalten. Ein Teil des Elternschlafzimmers wird abgetrennt und der Rest mit dem südlichen Kinderzimmer angehängt. So entsteht ein großzügiger Elternbereich. Der neu entstandene Raum zwischen Bad und Eltern kann als Abstellraum oder HWR genutzt werden, von beiden Zimmern aus zugänglich, wenn gewünscht.

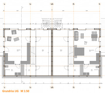
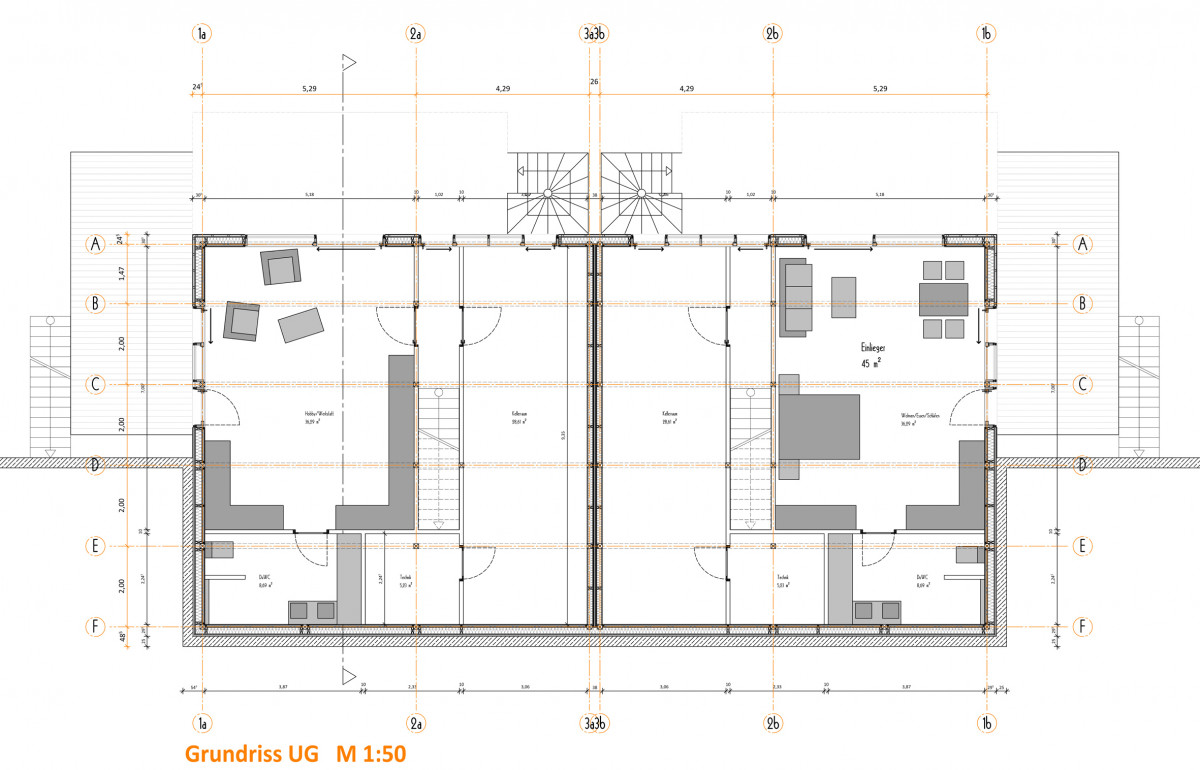
Das Untergeschoss kann wahlweise als 1-Zimmer-Einliegerwohnung mit innenliegendem Duschbad und separatem Kellerraum oder als zu den oberen Etagen gehörende Kellerräume inkl. eines hellen Hobbyraumes genutzt werden. Das Bad kann sowohl in der Einliegerwohnung als auch bei den Kellerräumen bestehen bleiben und dann als sogenannte Dreckschleuse nach der Gartenarbeit fungieren.

Die Wände sind auch hier im Untergeschoss dank der Stützen sehr variabel. Die einzelnen Kellerräume könnten noch weiter unterteilt werden oder die Wände komplett entfernt zu einem großen Raum.

Zurück

Warum Instaplan Ingenieure?

  • Interdisziplinäre Fachkompetenz – Architekten, Bauingenieure & Werkstoffexperten unter einem Dach
  • Nachhaltige Planung & ressourcenschonende Sanierung
  • Unabhängige Gutachten & präzise Bauwerksprüfungen
  • Langjährige Erfahrung in Industrie-, Gewerbe- & Wohnbauprojekten

Lassen Sie uns gemeinsam Ihr Bauprojekt oder Ihre Schadensanalyse angehen!

Navigation Schließen Suche E-Mail Telefon Kontakt Pfeil nach unten Pfeil nach oben Pfeil nach links Pfeil nach rechts Standort Anstellungsart Download Externer Link Startseite